网站首页
关于我们
组织架构
新闻动态
公司动态
行业动态
产品展示
高压开关柜
低压开关柜
工业自动化仪表箱、柜
箱式变电站
无功补偿装置
仪表保温保护箱
控制系统
电磁阀箱
桥架系列
母线槽系列
微机保护测控装置系列
配电自动化终端
开关柜智能操控装置
无线测温装置
数显电力仪表
后台监控系统
物联网仪表
导轨式电能表
电动机保护监控装置
智能型除湿装置
资质荣誉
技术支持
联系我们
产品展示
高压开关柜
低压开关柜
工业自动化仪表箱、柜
箱式变电站
无功补偿装置
仪表保温保护箱
控制系统
电磁阀箱
桥架系列
母线槽系列
微机保护测控装置系列
配电自动化终端
开关柜智能操控装置
无线测温装置
数显电力仪表
后台监控系统
物联网仪表
导轨式电能表
电动机保护监控装置
智能型除湿装置
联系我们
首页
/
产品展示
/
低压开关柜
低压开关柜
dykgg
加入购物车成功!
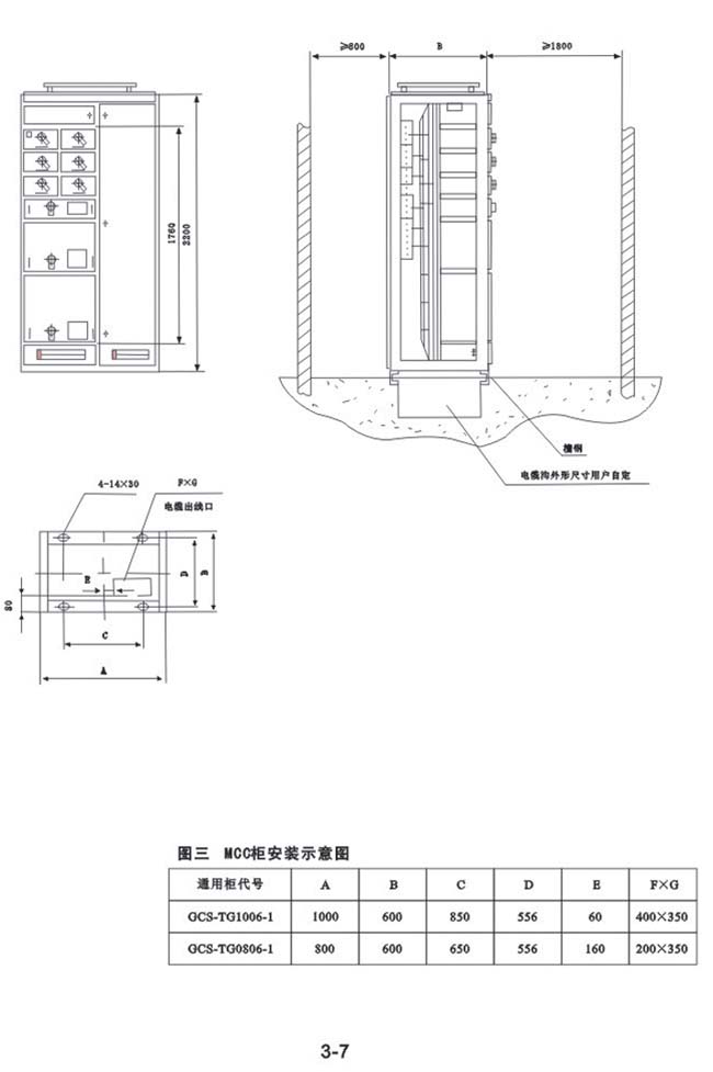
GCS低压抽出式开关柜
产品介绍
浏览:
上一篇:
GCK低压抽出式开关柜
下一篇:
MNS低压抽出式开关柜
友情链接:
百度
搜狗
阿里巴巴
Copyright ©:
安徽东能电气有限公司
皖ICP备13018448号-1